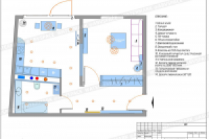
Планировка 1-комнатной квартиры в ЖК "Николин парк"
Для полной функциональности этого сайта необходимо включить JavaScript.
Москва
Давайте поработаем! Буду рад плодотворному сотрудничеству.
Александр Булатов
Vuong
Рейтинг: 212
Паспорт верифицирован
Всего отзывов:
11
0
Выполнил заданий:
4
Нейросаммари
Работ в портфолио:
87
Типовых услуг:
0
Работ на продажу:
0
Возраст:
43 года
Зарегистрирован:
21.07.2010
Был на сайте:
2026-04-03 в 17:02
inbox
telegram
Вконтакте
Предложить работу
Добавить в избранное
Добавить рекомендацию
Пожаловаться
Инженерия
54
0
Планировка 1-комнатной квартиры в ЖК "Николин парк"
Используемые навыки:
Чертежи/Схемы
Описание
Решение
Результат
Соавторы
Презентация проекта
Примеры реализации
Описание
В размер.
Презентация проекта
Оценили проект:
0
×
Оценили проект
×
Авторизация
Для того чтобы оценивать проекты, вам нужно войти на сайт
Другие проекты
Все проекты
Дизайн окна заказа пищи для японского ресторана
Прототип сайта "Главные инвестиции" 1
Новогоднее поздравление
FREELANCE.RU
Toggle navigation
Нанять фрилансера
Заказчику
Каталог фрилансеров
Каталог PRO
Каталог студий
Каталог услуг
Каталог работ
Виртуальный HR
Умный поиск
Провести конкурс
Разместить задание
Найти работу
Найти задание
Присоединиться к команде
Участвовать в конкурсе
Предложить услугу
Вход
Разместить задание
▲