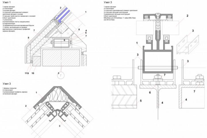
Узловое соединение крытого рынка
Для полной функциональности этого сайта необходимо включить JavaScript.
Самара
31 год
На сайте с: 11.08.2018
Быстро, красиво, качественно.
Эдвин Мартиросян
fromscratch
Рейтинг: 211
не верифицирован
Всего отзывов:
0
1
Работ в портфолио:
141
Типовых услуг:
0
Работ на продажу:
0
Был на сайте:
2019-02-01 в 20:25
+7-999-170-83-40
inbox
m.edvinwork@gmail.com
Предложить работу
Добавить в избранное
Добавить рекомендацию
Пожаловаться
Инженерия
15
0
Узловое соединение крытого рынка
Используемые навыки:
Чертежи/Схемы
Описание
Решение
Результат
Соавторы
Презентация проекта
Примеры реализации
Описание
Презентация проекта
Оценили проект:
0
×
Оценили проект
×
Авторизация
Для того чтобы оценивать проекты, вам нужно войти на сайт
Другие проекты
Все проекты
Однокомнатная квартира, Астана.
Элитная квартира на ул. Писарева. Санкт- Петербург.
Ванная в скандинавском стиле
FREELANCE.RU
Toggle navigation
Нанять фрилансера
Заказчику
Найти по специализации
Найти по услугам
Провести конкурс
Разместить задание
Другое
Найти работу
Фрилансеру
Найти задание
Присоединиться к команде
Участвовать в конкурсе
Другое
Возможности
Для заказчика
Для фрилансера
Вход
Разместить задание
▲