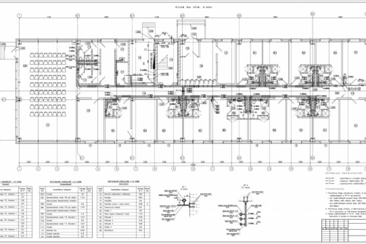
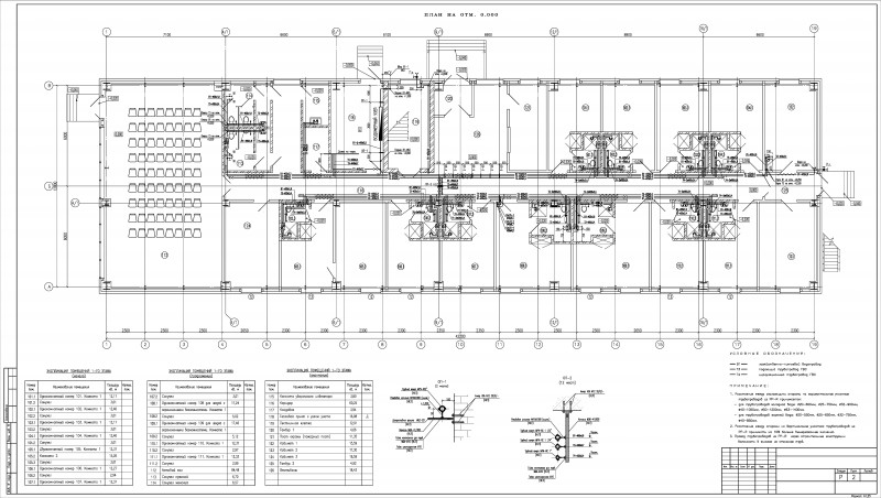
Внутренние системы водоснабжения и канализации санатория
Для полной функциональности этого сайта необходимо включить JavaScript.
Москва
Алексей Куимов
ingenerbk
Рейтинг: 77
не верифицирован
Всего отзывов:
0
Работ в портфолио:
7
Типовых услуг:
0
Работ на продажу:
0
Возраст:
38 лет
Зарегистрирован:
26.11.2017
Был на сайте:
2019-03-05 в 17:52
inbox
alexey_kuimov.14@list.ru
Предложить работу
Добавить в избранное
Добавить рекомендацию
Пожаловаться
Инженерия
22
0
Внутренние системы водоснабжения и канализации санатория
Используемые навыки:
Проектирование объектов
Описание
Решение
Результат
Соавторы
Презентация проекта
Примеры реализации
Описание
Презентация проекта
Оценили проект:
0
×
Оценили проект
×
Авторизация
Для того чтобы оценивать проекты, вам нужно войти на сайт
Другие проекты
Все проекты
Наружные сети пожаротушения
Насосная станция пожаротушения
Насосная станция пожаротушения
FREELANCE.RU
Toggle navigation
Нанять фрилансера
Заказчику
Найти по специализации
Найти по услугам
Провести конкурс
Разместить задание
Виртуальный HR
Найти студию
Другое
Найти работу
Фрилансеру
Найти задание
Присоединиться к команде
Участвовать в конкурсе
Предложить услугу
Другое
Возможности
Для заказчика
Для фрилансера
Вход
Разместить задание
▲