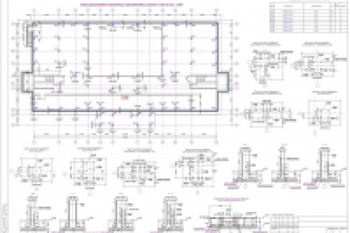
Фундаментная плита монолитная
Для полной функциональности этого сайта необходимо включить JavaScript.
Нижний Новгород
Юлия Будинская
julik910
Рейтинг: 110
не верифицирован
Всего отзывов:
1
0
Опубликовала заданий:
5
Активность:
Работ в портфолио:
15
Типовых услуг:
0
Работ на продажу:
0
Зарегистрирован:
08.06.2016
Была на сайте:
2019-03-06 в 19:40
Предложить работу
Добавить в избранное
Добавить рекомендацию
Пожаловаться
Инженерия
19
0
Фундаментная плита монолитная
Используемые навыки:
Промышленное и гражданское строительство
Описание
Решение
Результат
Соавторы
Презентация проекта
Примеры реализации
Описание
Презентация проекта
Оценили проект:
0
×
Оценили проект
×
Авторизация
Для того чтобы оценивать проекты, вам нужно войти на сайт
Другие проекты
Все проекты
Узлы КМ
Колонны ЖБ монолитные
Разрезы КЖ
FREELANCE.RU
Toggle navigation
Нанять фрилансера
Заказчику
Найти по специализации
Найти по услугам
Провести конкурс
Разместить задание
Виртуальный HR
Найти студию
Другое
Найти работу
Фрилансеру
Найти задание
Присоединиться к команде
Участвовать в конкурсе
Предложить услугу
Другое
Возможности
Для заказчика
Для фрилансера
Вход
Разместить задание
▲