Рейтинг: 80
Паспорт верифицирован
Всего отзывов: 0
Выполнила заданий: 3
  • Работ в портфолио: 10
  • Типовых услуг: 0
  • Работ на продажу: 0
  • Возраст: 25 лет
  • Стаж работы: 6 лет
  • Зарегистрирован: 30.06.2024
  • Юридический статус:Частное лицо
Была на сайте:

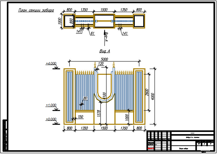
Альбом чертежей. Забор в г. Астана

Используемые навыки:

Описание

Заказчик поставил задачу выполнить чертежи для забора по разделам: КЖ, КМ и АР

Презентация проекта

pic4612494.jpg

Оценили проект:

0