Все будет хорошо

Владимир Климов klimov2005

Рейтинг: 54
не верифицирован
Всего отзывов: 0
  • Работ в портфолио: 4
  • Типовых услуг: 0
  • Работ на продажу: 0
Был на сайте:

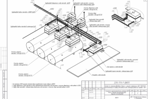
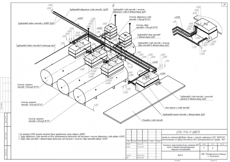
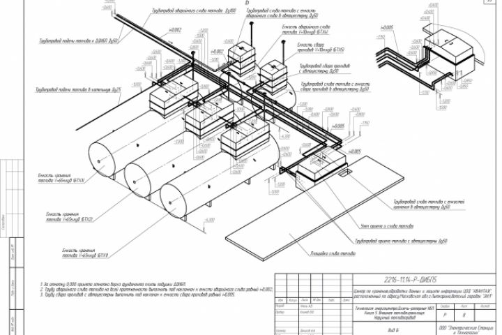
Топливоснабжение ДЭС

Используемые навыки:

Описание

Выполнен рабочий проект внешнего топливоснабжения (дизель) объемом 195 м.куб для электростанции центра обработки данных.

Презентация проекта

pic3637318.jpg

Оценили проект:

0