Работаю быстро, качественно, не дорого - выберите два из трёх!

Андрей Желтоноженко ap-tt-pro

Рейтинг: 45
не верифицирован
Всего отзывов: 0
  • Работ в портфолио: 5
  • Типовых услуг: 0
  • Работ на продажу: 0
Был на сайте:

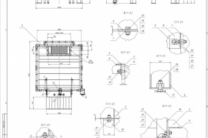
Печь наргевательная

Используемые навыки:

Описание

Печь нагревательная с максимальной рабочей температурой t=1150 C.
Печь предназначена для нагрева деталей и заготовок для их последующей обработкой давлением. Основная масса деталей
предназначена для вагоностроительного производства.
В объёме проектирования выполнен тепловой расчёт рекуператора и печи. По результатам расчётов выбраны горелки, тип и
толщина тепловой изоляции.
Выполнено КД и вспомогательные материалы для футеровщиков.
Объём расчётов:
пояснительная записка: А4 – 12 листов.
Объём КД:
спецификации: А4 – 15 листов;
сборочные чертежи: А1 – 3 листа, А2 – 4 листа, А3 – 9 листов;
деталировка: А3 – 5 листов, А4 – 119 листов.
текстовые документы: А3 – 2 листа, А4 – 2 листа.
Объём вспомогательных материалов: А3 – 7 листов.

Презентация проекта

pic3564748.jpg

Оценили проект:

0