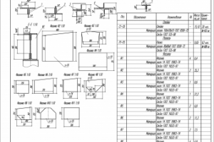
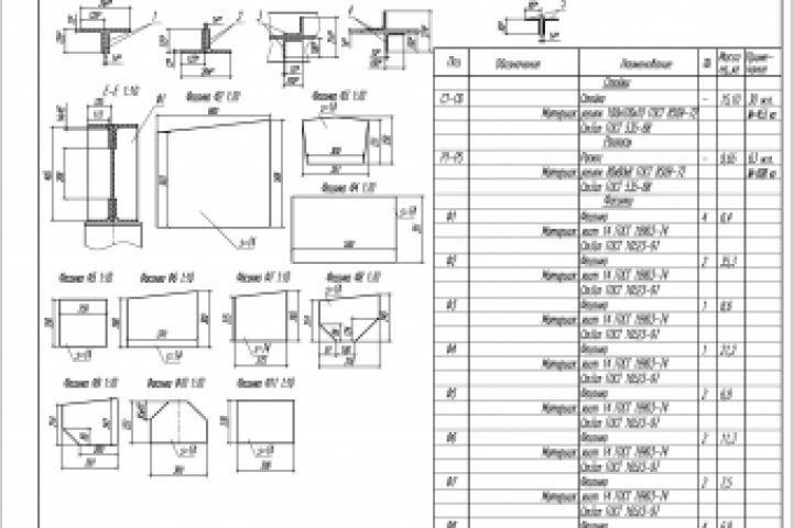
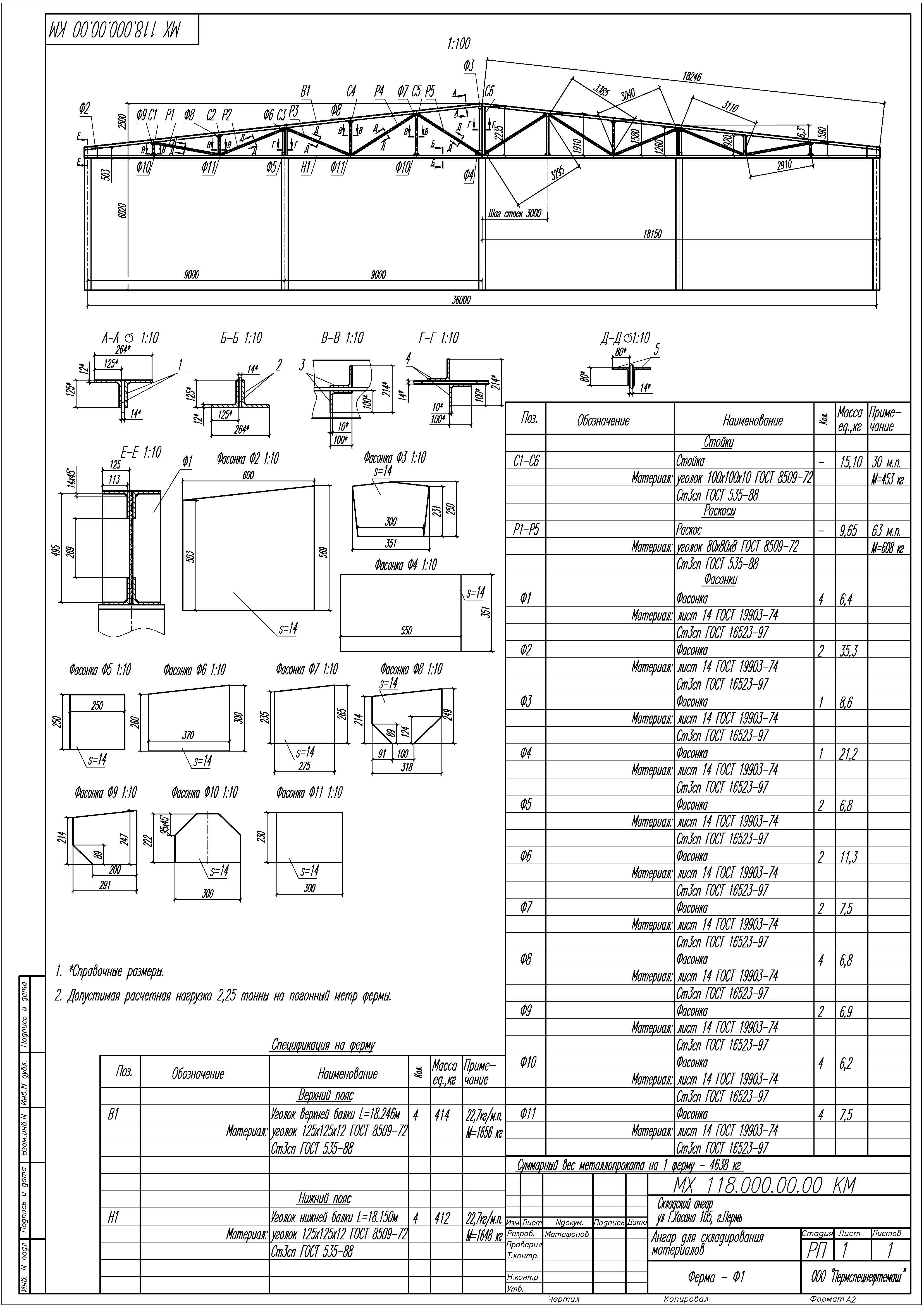
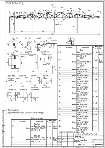
КМ на ферму
Для полной функциональности этого сайта необходимо включить JavaScript.
Владивосток
Лучшее качество за честную цену
Владислав Малинков
vladislav000
Рейтинг: 5 458
не верифицирован
Всего отзывов:
7
0
Выполнил заданий:
15
Нейросаммари
Надежность:
Использовал:
Работал по Безопасной сделке
Работ в портфолио:
36
Типовых услуг:
0
Работ на продажу:
0
Возраст:
55 лет
Зарегистрирован:
05.01.2019
Был на сайте:
2026-03-04 в 03:31
inbox
Предложить работу
Добавить в избранное
Добавить рекомендацию
Пожаловаться
Инженерия
48
0
КМ на ферму
Используемые навыки:
Проектирование объектов
Описание
Решение
Результат
Соавторы
Презентация проекта
Примеры реализации
Описание
Презентация проекта
Оценили проект:
0
×
Оценили проект
×
Авторизация
Для того чтобы оценивать проекты, вам нужно войти на сайт
Другие проекты
Все проекты
Валковый пресс
Комплект чертежей на редуктор вертолета
Опоры трубопроводов на технологической площадке
FREELANCE.RU
Toggle navigation
Нанять фрилансера
Заказчику
Найти по специализации
Найти по услугам
Провести конкурс
Разместить задание
Виртуальный HR
Найти студию
Другое
Найти работу
Фрилансеру
Найти задание
Присоединиться к команде
Участвовать в конкурсе
Предложить услугу
Другое
Возможности
Для заказчика
Для фрилансера
Вход
Разместить задание
▲