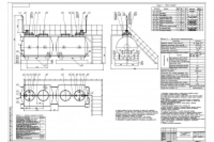
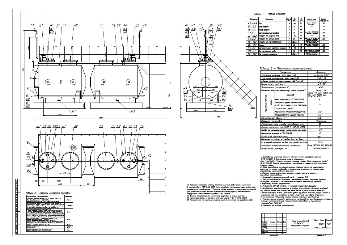
Блок резервуаров ЕП 5м3
Для полной функциональности этого сайта необходимо включить JavaScript.
Тамбов
Виктор
AVALON-900
Рейтинг: 75
не верифицирован
Всего отзывов:
0
Работ в портфолио:
25
Типовых услуг:
0
Работ на продажу:
0
Возраст:
44 года
Зарегистрирован:
17.04.2014
Был на сайте:
2019-04-30 в 15:37
inbox
Предложить работу
Добавить в избранное
Добавить рекомендацию
Пожаловаться
Инженерия
35
0
Блок резервуаров ЕП 5м3
Используемые навыки:
Машиностроение
Описание
Решение
Результат
Соавторы
Презентация проекта
Примеры реализации
Описание
Презентация проекта
Оценили проект:
0
×
Оценили проект
×
Авторизация
Для того чтобы оценивать проекты, вам нужно войти на сайт
Другие проекты
Все проекты
Работа 2401752
Ящик по ГОСТ
Площадка на емкость
FREELANCE.RU
Toggle navigation
Нанять фрилансера
Заказчику
Найти по специализации
Найти по услугам
Провести конкурс
Разместить задание
Виртуальный HR
Найти студию
Другое
Найти работу
Фрилансеру
Найти задание
Присоединиться к команде
Участвовать в конкурсе
Предложить услугу
Другое
Возможности
Для заказчика
Для фрилансера
Вход
Разместить задание
▲