Рейтинг: 136
не верифицирован
Всего отзывов: 0
  • Работ в портфолио: 66
  • Типовых услуг: 0
  • Работ на продажу: 0
Была на сайте:

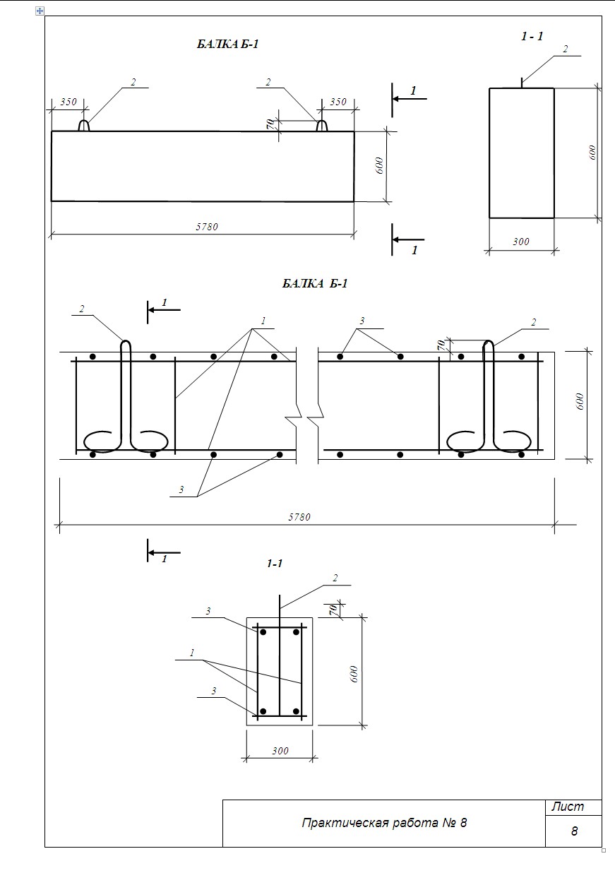
фрагмент практической работы по СТРОИТЕЛЬНЫЕ КОНСТРУКЦИИ

Используемые навыки:

Описание

Пример помтроения чертежа в документе Word.

Презентация проекта

pic1314694.jpg

Оценили проект:

0