Рейтинг: 38
не верифицирован
Всего отзывов: 0
  • Работ в портфолио: 8
  • Типовых услуг: 0
  • Работ на продажу: 0
Был на сайте:

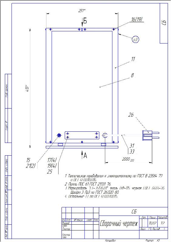
Оснастка для изделия №4

Используемые навыки:

Описание

Дополнительно прикрепил фото после изготовления.

Презентация проекта

pic3276027.jpg
4.jpg

Оценили проект:

0