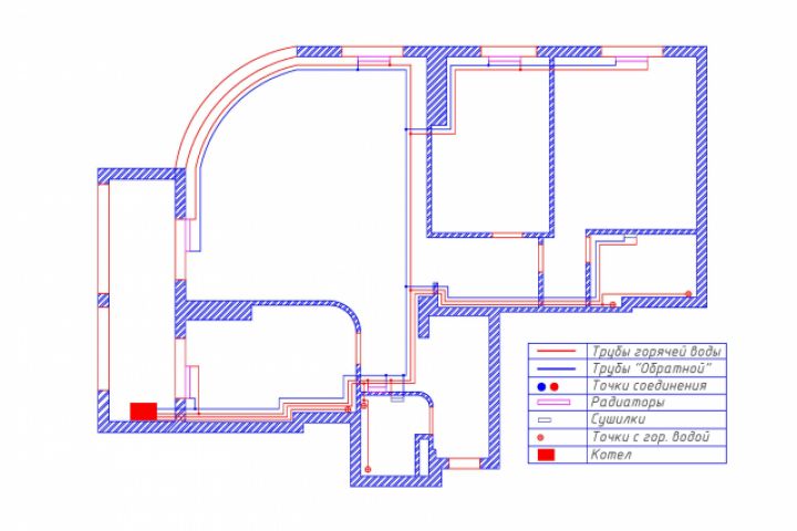
Отопление
Для полной функциональности этого сайта необходимо включить JavaScript.
Москва
ProfiArch
PROFIARCH
Рейтинг: 137
не верифицирован
Всего отзывов:
2
0
Выполнено заданий:
2
Опубликовано заданий:
3
Работ в портфолио:
87
Типовых услуг:
0
Работ на продажу:
0
Зарегистрирован:
28.10.2017
Был на сайте:
2019-06-02 в 21:47
Предложить работу
Добавить в избранное
Добавить рекомендацию
Пожаловаться
Инженерия
23
0
Отопление
Используемые навыки:
Водоснабжение и водоотведение
Описание
Решение
Результат
Соавторы
Презентация проекта
Примеры реализации
Описание
Презентация проекта
Оценили проект:
0
×
Оценили проект
×
Авторизация
Для того чтобы оценивать проекты, вам нужно войти на сайт
Другие проекты
Все проекты
мебель 2
Проект 056 Фитнес клуб Элис
мебель 1
FREELANCE.RU
Toggle navigation
Нанять фрилансера
Заказчику
Найти по специализации
Найти по услугам
Провести конкурс
Разместить задание
Виртуальный HR
Найти студию
Другое
Найти работу
Фрилансеру
Найти задание
Присоединиться к команде
Участвовать в конкурсе
Предложить услугу
Другое
Возможности
Для заказчика
Для фрилансера
Вход
Разместить задание
▲