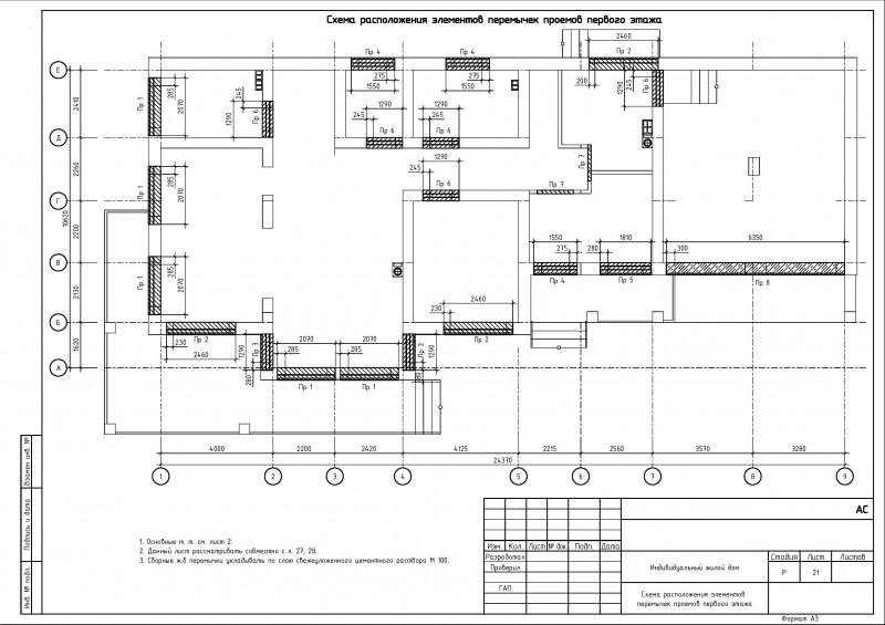
Схема расположения сборных перемычек
Для полной функциональности этого сайта необходимо включить JavaScript.
Николаев
42 года
На сайте с: 01.12.2015
Сергей Литвинов
LitvSV
Рейтинг: 183
не верифицирован
Всего отзывов:
0
Активность:
Работ в портфолио:
83
Типовых услуг:
0
Работ на продажу:
0
Был на сайте:
2019-06-10 в 10:17
+380962359968
inbox
litvsv@gmail.com
Предложить работу
Добавить в избранное
Добавить рекомендацию
Пожаловаться
Инженерия
55
0
Схема расположения сборных перемычек
Используемые навыки:
Строительные конструкции
Описание
Решение
Результат
Соавторы
Презентация проекта
Примеры реализации
Описание
Презентация проекта
Оценили проект:
0
×
Оценили проект
×
Авторизация
Для того чтобы оценивать проекты, вам нужно войти на сайт
Другие проекты
Все проекты
Схема расположения фундаментов зернохранилища
Схема нагрузок на фундаменты
Концепция каркаса здания (вид сверху)
FREELANCE.RU
Toggle navigation
Нанять фрилансера
Заказчику
Найти по специализации
Найти по услугам
Провести конкурс
Разместить задание
Другое
Найти работу
Фрилансеру
Найти задание
Присоединиться к команде
Участвовать в конкурсе
Другое
Возможности
Для заказчика
Для фрилансера
Вход
Разместить задание
▲