Рейтинг: 105
не верифицирован
Всего отзывов: 1 0
  • Активность:
  • Работ в портфолио: 10
  • Типовых услуг: 0
  • Работ на продажу: 0
  • Зарегистрирован: 10.11.2014
Был на сайте:

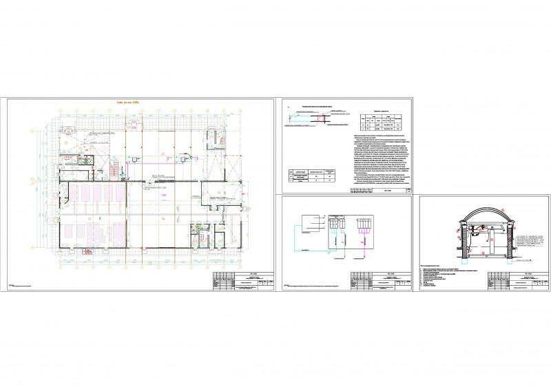
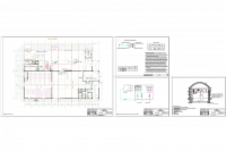
Проект дымоуделения через крышные фрамуги. Магазин "Петрович"

Используемые навыки:

Описание

Проект ДУ через крышые фрамуги дымоудаления. С расчётом узлов крепления на существующую ферму стропил объекта

Презентация проекта

pic2712434.jpg

Оценили проект:

0