С понимаем дела!

Дмитрий Жуков izhukovdmitry

Рейтинг: 120
не верифицирован
Всего отзывов: 0
  • Работ в портфолио: 50
  • Типовых услуг: 0
  • Работ на продажу: 0
Был на сайте:

Пример раздела КЖ 1(1)

Используемые навыки:

Описание

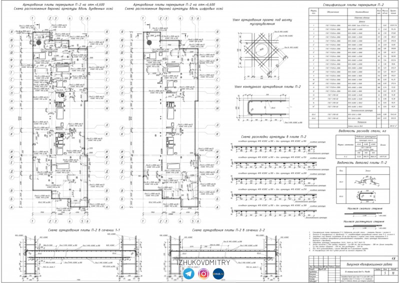
Пример выпускной квалификационной работы на тему "36-этажный жилой дом в г.Москве с подземной 2-уровневой автостоянкой" по направлению 08.05.01 "Строительство уникальных зданий и сооружений. Высотные и большепролетные здания и сооружения". ФГБОУ ВО КУБГТУ, ИСиТИ.

-Схемы армирования типовой плиты перекрытия
-Размеры
-Спецификация арматурных изделий
-Ведомость расхода стали
-Узловые решения
-Текстовые пояснения

Работа выполнена в программе Autodesk AutoCAD+LIRA Sapr+LIRA SAPFIR

Презентация проекта

pic3712089.jpg

Оценили проект:

0