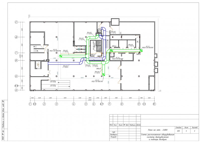
Система дымоудаления и подпора воздуха
Для полной функциональности этого сайта необходимо включить JavaScript.
Черкассы
44 года
На сайте с: 15.12.2013
Мы всегда найдём общий язык!
Алексей Шашлюк
STUDIO-CH
Рейтинг: 74
не верифицирован
Всего отзывов:
0
Выполнил заданий:
2
Работ в портфолио:
4
Типовых услуг:
0
Работ на продажу:
0
Был на сайте:
2019-08-07 в 23:44
inbox
work@studio-ch.com
Предложить работу
Добавить в избранное
Добавить рекомендацию
Пожаловаться
Инженерия
6
0
Система дымоудаления и подпора воздуха
Описание
Решение
Результат
Соавторы
Презентация проекта
Примеры реализации
Описание
Презентация проекта
Оценили проект:
0
×
Оценили проект
×
Авторизация
Для того чтобы оценивать проекты, вам нужно войти на сайт
Другие проекты
Все проекты
Видеонаблюдение. Структурная схема.
Структурная схема АПС
Оцифровка
FREELANCE.RU
Toggle navigation
Нанять фрилансера
Заказчику
Найти по специализации
Найти по услугам
Провести конкурс
Разместить задание
Другое
Найти работу
Фрилансеру
Найти задание
Присоединиться к команде
Участвовать в конкурсе
Другое
Возможности
Для заказчика
Для фрилансера
Вход
Разместить задание
▲