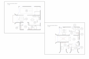
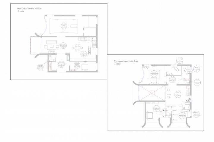
Планы зонирование/расстановка мебели
Для полной функциональности этого сайта необходимо включить JavaScript.
Москва
39 лет
На сайте с: 04.12.2007
Анна Королева
ilyanna
Рейтинг: 158
не верифицирован
Всего отзывов:
0
Работ в портфолио:
98
Типовых услуг:
0
Работ на продажу:
0
Была на сайте:
2019-08-18 в 11:30
inbox
Предложить работу
Добавить в избранное
Добавить рекомендацию
Пожаловаться
Дизайн пространства
20
0
Планы зонирование/расстановка мебели
Используемые навыки:
Архитектурное проектирование
Описание
Решение
Результат
Соавторы
Презентация проекта
Примеры реализации
Описание
Презентация проекта
Оценили проект:
0
×
Оценили проект
×
Авторизация
Для того чтобы оценивать проекты, вам нужно войти на сайт
Другие проекты
Все проекты
Визитка
Декоративная живопись
Работа 2997251
FREELANCE.RU
Toggle navigation
Нанять фрилансера
Заказчику
Найти по специализации
Найти по услугам
Провести конкурс
Разместить задание
Виртуальный HR
Другое
Найти работу
Фрилансеру
Найти задание
Присоединиться к команде
Участвовать в конкурсе
Предложить услугу
Другое
Возможности
Для заказчика
Для фрилансера
Вход
Разместить задание
▲