Проект Сг16. Московская обл.
Для полной функциональности этого сайта необходимо включить JavaScript.
Москва
На сайте с: 24.02.2019
Михаил Манухин
i2019arrived
Рейтинг: 82
не верифицирован
Всего отзывов:
0
Работ в портфолио:
22
Типовых услуг:
0
Работ на продажу:
0
Был на сайте:
2019-08-21 в 19:38
+79166780474 +7916 2886477
inbox
manmik@yandex.ru
Предложить работу
Добавить в избранное
Добавить рекомендацию
Пожаловаться
Дизайн пространства
21
0
Проект Сг16. Московская обл.
Используемые навыки:
Ландшафтный дизайн
Описание
Решение
Результат
Соавторы
Презентация проекта
Примеры реализации
Описание
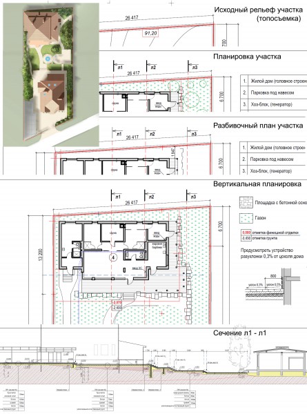
Эскизная часть и полный рабочий проект.
Презентация проекта
Оценили проект:
0
×
Оценили проект
×
Авторизация
Для того чтобы оценивать проекты, вам нужно войти на сайт
Другие проекты
Все проекты
Проект юг28. Павильон.
Проект юг28. Благоустройство участка. Проекты построек.
Проект юг28. Павильон. Отделочный план
FREELANCE.RU
Toggle navigation
Нанять фрилансера
Заказчику
Найти по специализации
Найти по услугам
Провести конкурс
Разместить задание
Виртуальный HR
Другое
Найти работу
Фрилансеру
Найти задание
Присоединиться к команде
Участвовать в конкурсе
Другое
Возможности
Для заказчика
Для фрилансера
Вход
Разместить задание
▲