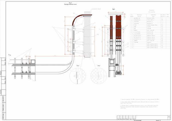
Детализация узла из проекта электроснабжения насосной станции
Для полной функциональности этого сайта необходимо включить JavaScript.
Санкт-Петербург
На сайте с: 13.12.2018
Ответственность превыше всего
Владислав
tyastovskiy
Рейтинг: 53
не верифицирован
Всего отзывов:
0
Работ в портфолио:
3
Типовых услуг:
0
Работ на продажу:
0
Был на сайте:
2019-10-28 в 16:32
89217570948
inbox
Предложить работу
Добавить в избранное
Добавить рекомендацию
Пожаловаться
Инженерия
3
0
Детализация узла из проекта электроснабжения насосной станции
Описание
Решение
Результат
Соавторы
Презентация проекта
Примеры реализации
Описание
Презентация проекта
Оценили проект:
0
×
Оценили проект
×
Авторизация
Для того чтобы оценивать проекты, вам нужно войти на сайт
Другие проекты
Все проекты
Ситема электроснабжения крупного ТЦ
Проект ЭС и ЭО ( 9 ТП 10/0,4) городского поселения на 1753 дома
FREELANCE.RU
Toggle navigation
Нанять фрилансера
Заказчику
Найти по специализации
Найти по услугам
Провести конкурс
Разместить задание
Виртуальный HR
Другое
Найти работу
Фрилансеру
Найти задание
Присоединиться к команде
Участвовать в конкурсе
Другое
Возможности
Для заказчика
Для фрилансера
Вход
Разместить задание
▲