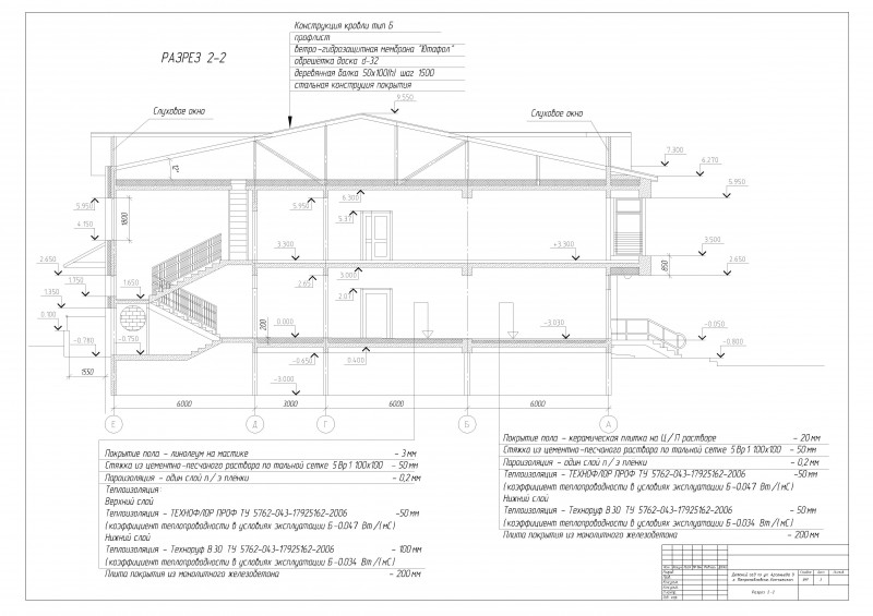
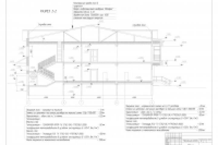
Детский сад. Разрез
Для полной функциональности этого сайта необходимо включить JavaScript.
42 года
На сайте с: 18.09.2013
Максим Урбанский
urbanmak
Рейтинг: 159
не верифицирован
Всего отзывов:
0
Активность:
Работ в портфолио:
29
Типовых услуг:
0
Работ на продажу:
0
Был на сайте:
2019-11-29 в 10:12
+380977930440
inbox
urbanmak83@gmail.com
Предложить работу
Добавить в избранное
Добавить рекомендацию
Пожаловаться
Инженерия
20
0
Детский сад. Разрез
Используемые навыки:
Чертежи/Схемы
Описание
Решение
Результат
Соавторы
Презентация проекта
Примеры реализации
Описание
Презентация проекта
Оценили проект:
0
×
Оценили проект
×
Авторизация
Для того чтобы оценивать проекты, вам нужно войти на сайт
Другие проекты
Все проекты
ППР ремонт кожуха доменной печи. План
Лестница. Детали
Траверса г.п. 70т. КМД
FREELANCE.RU
Toggle navigation
Нанять фрилансера
Заказчику
Найти по специализации
Найти по услугам
Провести конкурс
Разместить задание
Другое
Найти работу
Фрилансеру
Найти задание
Присоединиться к команде
Участвовать в конкурсе
Другое
Возможности
Для заказчика
Для фрилансера
Вход
Разместить задание
▲