Рейтинг: 39
не верифицирован
Всего отзывов: 0
  • Работ в портфолио: 9
  • Типовых услуг: 0
  • Работ на продажу: 0
Был на сайте:

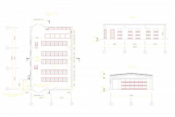
Склад тарного хранения масел

Используемые навыки:

Описание

Расстановка технологического оборудования. Выдача заданий и нагрузок смежным разделам.

Презентация проекта

pic2234606.jpg

Оценили проект:

0