Рейтинг: 121
не верифицирован
Всего отзывов: 0
  • Работ в портфолио: 91
  • Типовых услуг: 0
  • Работ на продажу: 0
Был на сайте:

Рабочее проектирование. Строительные конструкции.

Используемые навыки:

Описание

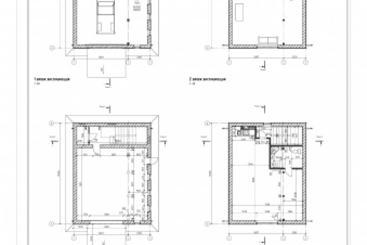
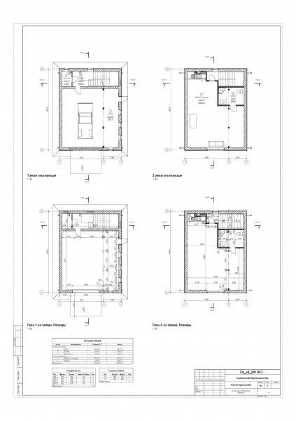
Разработка архитектурного, объемно-планировочного решения жилого двухэтажного дома. Создание рабочего проекта, спецификаций, сметы на объемы материалов.

Презентация проекта

pic3799011.jpg

Оценили проект:

0