Рейтинг: 121
не верифицирован
Всего отзывов: 0
  • Работ в портфолио: 91
  • Типовых услуг: 0
  • Работ на продажу: 0
Был на сайте:

Рабочее проектирование. Строительные конструкции.

Описание

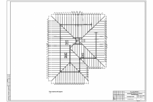
Разработка архитектурного, объемно-планировочного решения жилого одноэтажного дома из газобетона 186м2. Создание рабочего проекта. Работа с материалами. Смета объемов материалов.

Презентация проекта

pic3798358.jpg

Оценили проект:

0