Рейтинг: 121
не верифицирован
Всего отзывов: 0
  • Работ в портфолио: 91
  • Типовых услуг: 0
  • Работ на продажу: 0
Был на сайте:

Разработка архитектурного решения

Описание

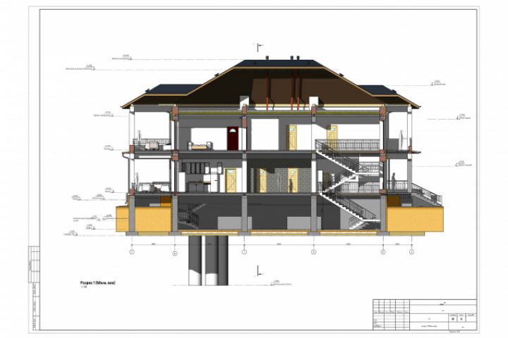
Разработка архитектурного, объемно-планировочного решения жилого двухэтажного дома 1100м2. Создание эскизного проекта. Работа с материалами. Визуализация объекта, материалов. Создание презентации, печать. Построен.

Презентация проекта

pic3798182.jpg

Оценили проект:

0