Аэропорт ОВ, ВК
Для полной функциональности этого сайта необходимо включить JavaScript.
Санкт-Петербург
45 лет
На сайте с: 01.06.2011
Не только проектируем - но и внедряем в жизнь!!!
Александр Чванов
shacker
Рейтинг: 77
не верифицирован
Всего отзывов:
0
Опубликовал заданий:
2
Работ в портфолио:
7
Типовых услуг:
0
Работ на продажу:
0
Был на сайте:
2020-01-15 в 13:51
Предложить работу
Добавить в избранное
Добавить рекомендацию
Пожаловаться
Инженерия
28
0
Аэропорт ОВ, ВК
Описание
Решение
Результат
Соавторы
Презентация проекта
Примеры реализации
Описание
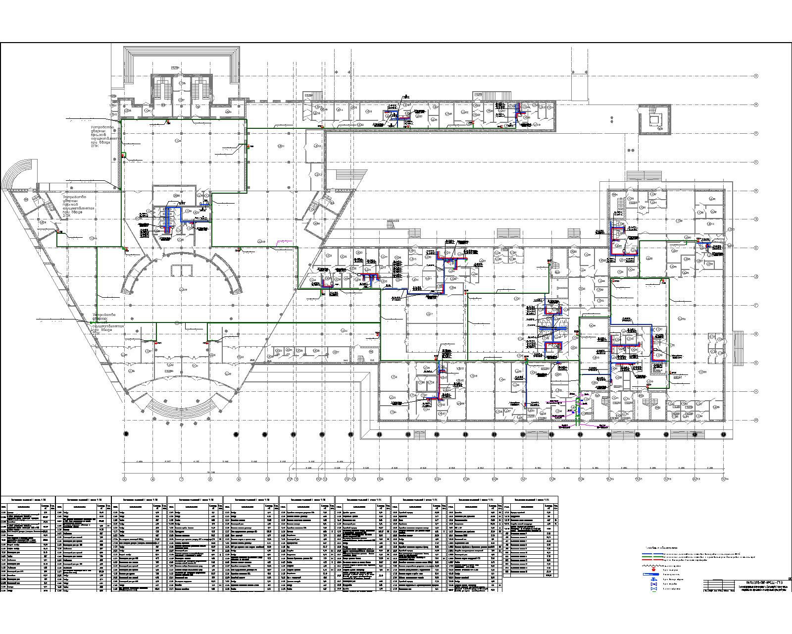
Реконструкция аэропорта, разделы ОВ, ВК
Презентация проекта
Оценили проект:
0
×
Оценили проект
×
Авторизация
Для того чтобы оценивать проекты, вам нужно войти на сайт
Другие проекты
Все проекты
Схема принципиальная электрическая
Проект вентиляции центра реабилитации инвалидов
ОВК амбулатория пос. Пяльма
FREELANCE.RU
Toggle navigation
Нанять фрилансера
Заказчику
Найти по специализации
Найти по услугам
Провести конкурс
Разместить задание
Другое
Найти работу
Фрилансеру
Найти задание
Присоединиться к команде
Участвовать в конкурсе
Другое
Возможности
Для заказчика
Для фрилансера
Вход
Разместить задание
▲