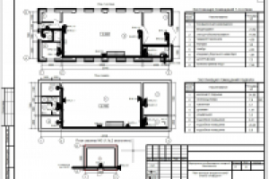
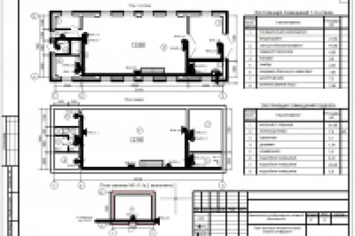
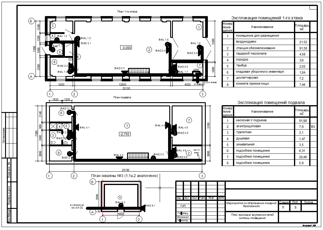
ВЗУ план оповещения
Для полной функциональности этого сайта необходимо включить JavaScript.
Москва
47 лет
На сайте с: 22.08.2011
Проектирую сети водоснабжения и канализации
Олег Нохрин
oleg-nohrin
Рейтинг: 494
не верифицирован
Всего отзывов:
1
0
Нейросаммари
Активность:
Работ в портфолио:
153
Типовых услуг:
0
Работ на продажу:
0
Был на сайте:
2026-02-03 в 13:02
8-909-6735152
inbox
oleg-nohrin@mail.ru
Предложить работу
Добавить в избранное
Добавить рекомендацию
Пожаловаться
Инженерия
39
0
ВЗУ план оповещения
Используемые навыки:
Водоснабжение и водоотведение
Описание
Решение
Результат
Соавторы
Презентация проекта
Примеры реализации
Описание
ВЗУ план оповещения
Презентация проекта
Оценили проект:
0
×
Оценили проект
×
Авторизация
Для того чтобы оценивать проекты, вам нужно войти на сайт
Другие проекты
Все проекты
ВЗУ план пожарной сигнализации
НВК подключение здания (Б. Грузинская)
НВК подключение здания (Дубровка)
FREELANCE.RU
Toggle navigation
Нанять фрилансера
Заказчику
Найти по специализации
Найти по услугам
Провести конкурс
Разместить задание
Виртуальный HR
Другое
Найти работу
Фрилансеру
Найти задание
Присоединиться к команде
Участвовать в конкурсе
Предложить услугу
Другое
Возможности
Для заказчика
Для фрилансера
Вход
Разместить задание
▲