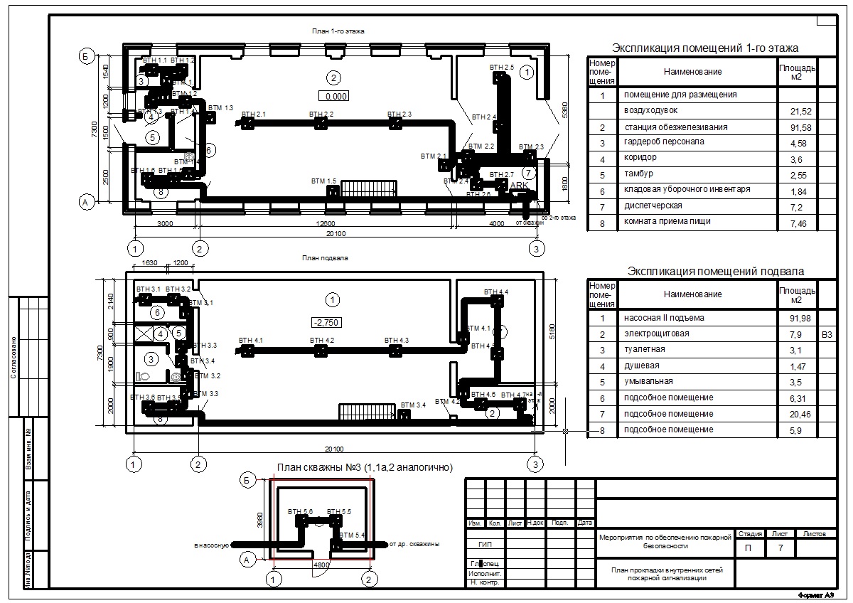
ВЗУ план пожарной сигнализации
Для полной функциональности этого сайта необходимо включить JavaScript.
Москва
Проектирую сети водоснабжения и канализации
Олег Нохрин
oleg-nohrin
Рейтинг: 494
не верифицирован
Всего отзывов:
1
0
Нейросаммари
Активность:
Работ в портфолио:
153
Типовых услуг:
0
Работ на продажу:
0
Возраст:
47 лет
Зарегистрирован:
22.08.2011
Был на сайте:
2026-02-03 в 13:02
8-909-6735152
inbox
oleg-nohrin@mail.ru
Предложить работу
Добавить в избранное
Добавить рекомендацию
Пожаловаться
Инженерия
56
0
ВЗУ план пожарной сигнализации
Используемые навыки:
Водоснабжение и водоотведение
Описание
Решение
Результат
Соавторы
Презентация проекта
Примеры реализации
Описание
ВЗУ план пожарной сигнализации
Презентация проекта
Оценили проект:
0
×
Оценили проект
×
Авторизация
Для того чтобы оценивать проекты, вам нужно войти на сайт
Другие проекты
Все проекты
НВК перекладка сети (Батайский)
НВК торговый комплекс (Варшавка)
Дренаж п.Озера
FREELANCE.RU
Toggle navigation
Нанять фрилансера
Заказчику
Найти по специализации
Найти по услугам
Провести конкурс
Разместить задание
Виртуальный HR
Найти студию
Другое
Найти работу
Фрилансеру
Найти задание
Присоединиться к команде
Участвовать в конкурсе
Предложить услугу
Другое
Возможности
Для заказчика
Для фрилансера
Вход
Разместить задание
▲