Рейтинг: 127
не верифицирован
Всего отзывов: 0
  • Работ в портфолио: 67
  • Типовых услуг: 0
  • Работ на продажу: 0
Был на сайте:

Валцевый станок

Используемые навыки:

Описание

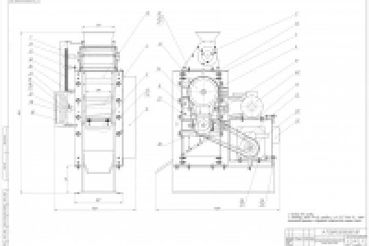
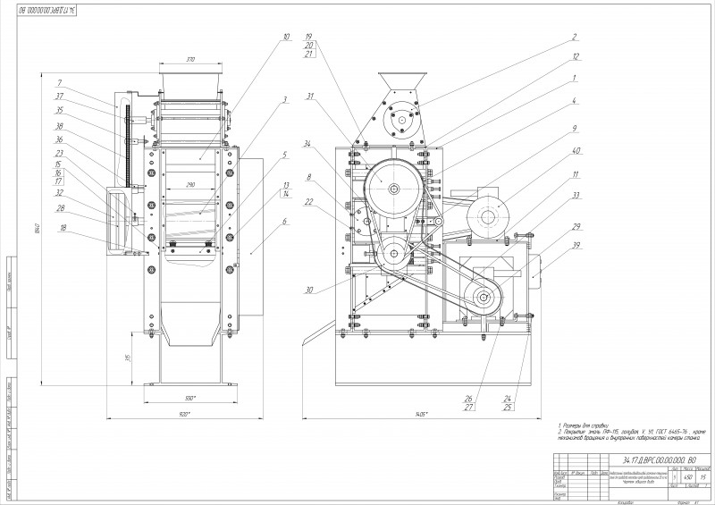
Чертеж универсального трехвальцового размольного станка производительностью 350 кг/ч.

Презентация проекта

pic1940055.jpg

Оценили проект:

0