Рейтинг: 127
не верифицирован
Всего отзывов: 0
  • Работ в портфолио: 67
  • Типовых услуг: 0
  • Работ на продажу: 0
Был на сайте:

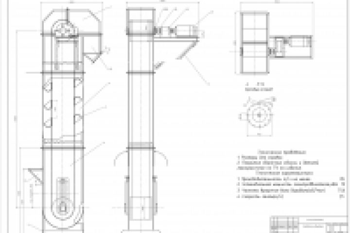
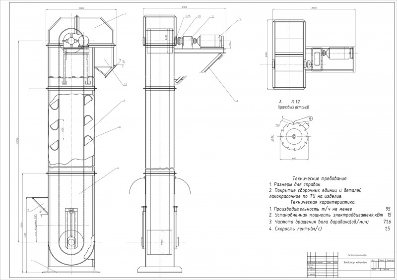
Элеватор

Используемые навыки:

Описание

Ковшовый элеватор, производительностью 95 т/час.

Презентация проекта

pic2337095.jpg

Оценили проект:

0