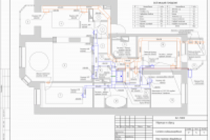
План системы кондиционирования в квартире
Для полной функциональности этого сайта необходимо включить JavaScript.
Москва
На сайте с: 21.11.2011
Комплексное проектирование инженерных систем
d0k
Рейтинг: 49
не верифицирован
Всего отзывов:
0
Опубликовал заданий:
3
Работ в портфолио:
9
Типовых услуг:
0
Работ на продажу:
0
Был на сайте:
2020-04-11 в 09:47
Предложить работу
Добавить в избранное
Добавить рекомендацию
Пожаловаться
Инженерия
75
0
План системы кондиционирования в квартире
Используемые навыки:
Теплоснабжение/Отопление/Вентиляция
Описание
Решение
Результат
Соавторы
Презентация проекта
Примеры реализации
Описание
Презентация проекта
Оценили проект:
0
×
Оценили проект
×
Авторизация
Для того чтобы оценивать проекты, вам нужно войти на сайт
Другие проекты
Все проекты
План электроосвещения кафе
Аксонометрическая схема системы канализации коттеджа
Принципиальная схема индивидуальной котельной
FREELANCE.RU
Toggle navigation
Нанять фрилансера
Заказчику
Найти по специализации
Найти по услугам
Провести конкурс
Разместить задание
Виртуальный HR
Другое
Найти работу
Фрилансеру
Найти задание
Присоединиться к команде
Участвовать в конкурсе
Другое
Возможности
Для заказчика
Для фрилансера
Вход
Разместить задание
▲