Коттедж. Киев
Для полной функциональности этого сайта необходимо включить JavaScript.
Москва
На сайте с: 07.09.2016
люто архитектурю
Яна Лютая
Liutaia
Рейтинг: 113
не верифицирован
Всего отзывов:
0
Работ в портфолио:
53
Типовых услуг:
0
Работ на продажу:
0
Была на сайте:
2020-05-12 в 00:32
+79005887413
inbox
telegram
liutaia.blogspot.ru
Предложить работу
Добавить в избранное
Добавить рекомендацию
Пожаловаться
Дизайн пространства
17
0
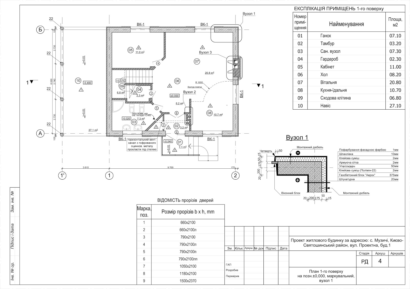
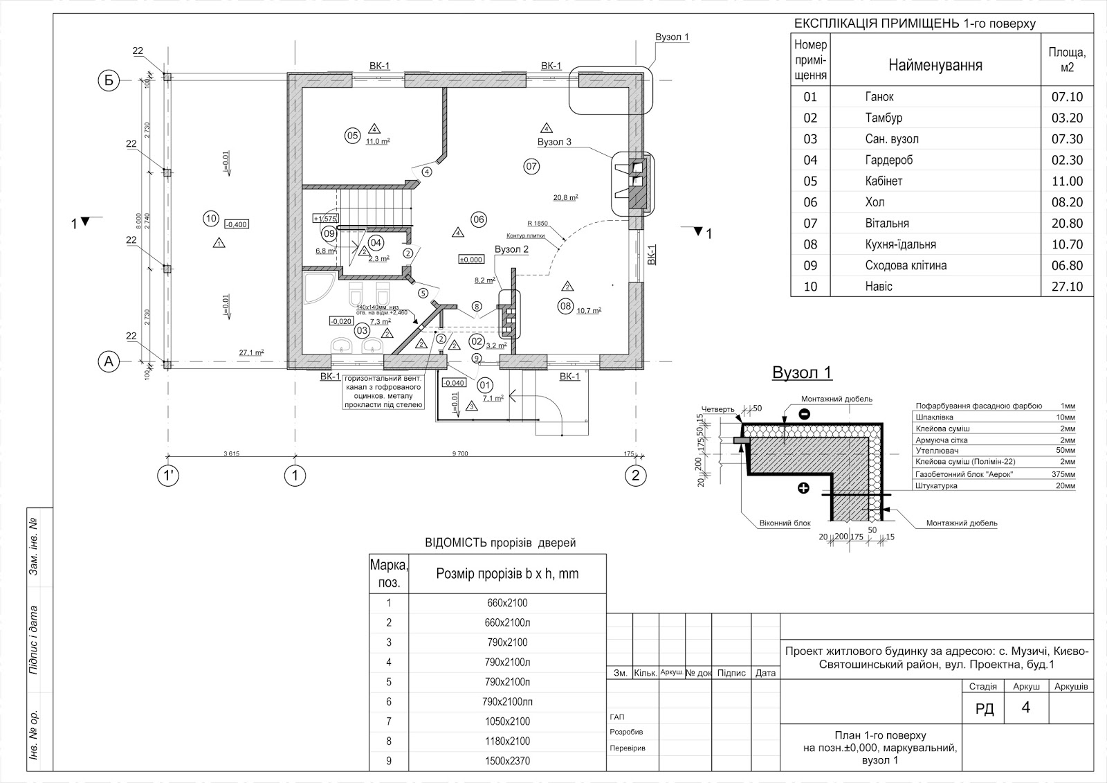
Коттедж. Киев
Используемые навыки:
Архитектура зданий и сооружений
Описание
Решение
Результат
Соавторы
Презентация проекта
Примеры реализации
Описание
Презентация проекта
Оценили проект:
0
×
Оценили проект
×
Авторизация
Для того чтобы оценивать проекты, вам нужно войти на сайт
Другие проекты
Все проекты
Производственное здание, стадия Р. Фасады
Производственное здание, стадия П
Производственное здание, стадия Р. Кровля
FREELANCE.RU
Toggle navigation
Нанять фрилансера
Заказчику
Найти по специализации
Найти по услугам
Провести конкурс
Разместить задание
Виртуальный HR
Другое
Найти работу
Фрилансеру
Найти задание
Присоединиться к команде
Участвовать в конкурсе
Другое
Возможности
Для заказчика
Для фрилансера
Вход
Разместить задание
▲