Частный дом. Раздел АС
Для полной функциональности этого сайта необходимо включить JavaScript.
На сайте с: 03.01.2014
Ответственно, оперативно, профессионально. Всегда на связи.
Natalia Vysotenko
ROCKsolana
Рейтинг: 142
не верифицирован
Всего отзывов:
0
Активность:
Работ в портфолио:
62
Типовых услуг:
0
Работ на продажу:
0
Была на сайте:
2020-05-17 в 19:00
inbox
inspiration_n@ukr.net
Предложить работу
Добавить в избранное
Добавить рекомендацию
Пожаловаться
Дизайн пространства
31
0
Частный дом. Раздел АС
Используемые навыки:
Архитектура зданий и сооружений
Описание
Решение
Результат
Соавторы
Презентация проекта
Примеры реализации
Описание
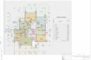
План 1 этажа со схемой коммуникаций
Презентация проекта
Оценили проект:
0
×
Оценили проект
×
Авторизация
Для того чтобы оценивать проекты, вам нужно войти на сайт
Другие проекты
Все проекты
1-комн. квартира. Ванная
Частный дом. Раздел АС
Гостинная в двухкомнатной квартире
FREELANCE.RU
Toggle navigation
Нанять фрилансера
Заказчику
Найти по специализации
Найти по услугам
Провести конкурс
Разместить задание
Другое
Найти работу
Фрилансеру
Найти задание
Присоединиться к команде
Участвовать в конкурсе
Другое
Возможности
Для заказчика
Для фрилансера
Вход
Разместить задание
▲