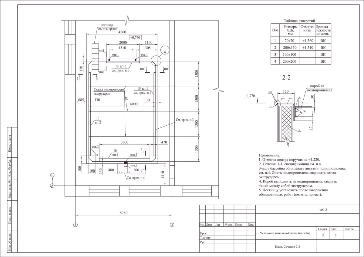
Установка напольной чаши бассейна 2
Для полной функциональности этого сайта необходимо включить JavaScript.
На сайте с: 31.05.2011
Дмитрий Бабаенко
dimonbds
Рейтинг: 51
не верифицирован
Всего отзывов:
0
Работ в портфолио:
11
Типовых услуг:
0
Работ на продажу:
0
Был на сайте:
2020-05-22 в 12:27
inbox
ninebds@rambler.ru
Предложить работу
Добавить в избранное
Добавить рекомендацию
Пожаловаться
Инженерия
7
0
Установка напольной чаши бассейна 2
Используемые навыки:
Строительные конструкции
Описание
Решение
Результат
Соавторы
Презентация проекта
Примеры реализации
Описание
Презентация проекта
Оценили проект:
0
×
Оценили проект
×
Авторизация
Для того чтобы оценивать проекты, вам нужно войти на сайт
Другие проекты
Все проекты
План цеха
Построение изометрии
Установка напольной чаши бассейна
FREELANCE.RU
Toggle navigation
Нанять фрилансера
Заказчику
Найти по специализации
Найти по услугам
Провести конкурс
Разместить задание
Другое
Найти работу
Фрилансеру
Найти задание
Присоединиться к команде
Участвовать в конкурсе
Другое
Возможности
Для заказчика
Для фрилансера
Вход
Разместить задание
▲