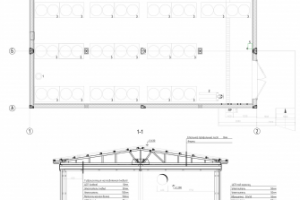
Блочно-модульное здание, АР, РКД - контроль реализации
Для полной функциональности этого сайта необходимо включить JavaScript.
Балашиха
На сайте с: 25.05.2020
Анна Аскерова
askerovanna
Рейтинг: 58
не верифицирован
Всего отзывов:
0
Работ в портфолио:
8
Типовых услуг:
0
Работ на продажу:
0
Была на сайте:
2020-05-25 в 15:07
inbox
Предложить работу
Добавить в избранное
Добавить рекомендацию
Пожаловаться
Дизайн пространства
11
0
Блочно-модульное здание, АР, РКД - контроль реализации
Используемые навыки:
Архитектура зданий и сооружений
Описание
Решение
Результат
Соавторы
Презентация проекта
Примеры реализации
Описание
Презентация проекта
Оценили проект:
0
×
Оценили проект
×
Авторизация
Для того чтобы оценивать проекты, вам нужно войти на сайт
Другие проекты
Все проекты
Стадия Р, проект многоэтажки - Реновация, Revit
Концепция, раздел АР магазинов в составе крупных СТЦ
Блочно-модульное сооружение, концепция
FREELANCE.RU
Toggle navigation
Нанять фрилансера
Заказчику
Найти по специализации
Найти по услугам
Провести конкурс
Разместить задание
Виртуальный HR
Другое
Найти работу
Фрилансеру
Найти задание
Присоединиться к команде
Участвовать в конкурсе
Другое
Возможности
Для заказчика
Для фрилансера
Вход
Разместить задание
▲