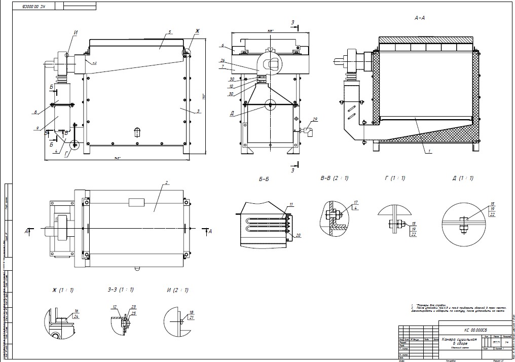
сушильная камера для гальваники
Для полной функциональности этого сайта необходимо включить JavaScript.
Москва
43 года
На сайте с: 10.11.2016
У любой задачи есть решение!
Максим Приходько
enginfor
Рейтинг: 86
не верифицирован
Всего отзывов:
0
Работ в портфолио:
16
Типовых услуг:
0
Работ на продажу:
0
Был на сайте:
2020-06-17 в 19:47
+79670037687
inbox
st-mold@mail.ru
Предложить работу
Добавить в избранное
Добавить рекомендацию
Пожаловаться
Инженерия
22
0
сушильная камера для гальваники
Используемые навыки:
Чертежи/Схемы
Описание
Решение
Результат
Соавторы
Презентация проекта
Примеры реализации
Описание
Презентация проекта
Оценили проект:
0
×
Оценили проект
×
Авторизация
Для того чтобы оценивать проекты, вам нужно войти на сайт
Другие проекты
Все проекты
намоточная оправка
Камера фосфатирования и промывки
Покрасочная линия
FREELANCE.RU
Toggle navigation
Нанять фрилансера
Заказчику
Найти по специализации
Найти по услугам
Провести конкурс
Разместить задание
Виртуальный HR
Другое
Найти работу
Фрилансеру
Найти задание
Присоединиться к команде
Участвовать в конкурсе
Другое
Возможности
Для заказчика
Для фрилансера
Вход
Разместить задание
▲