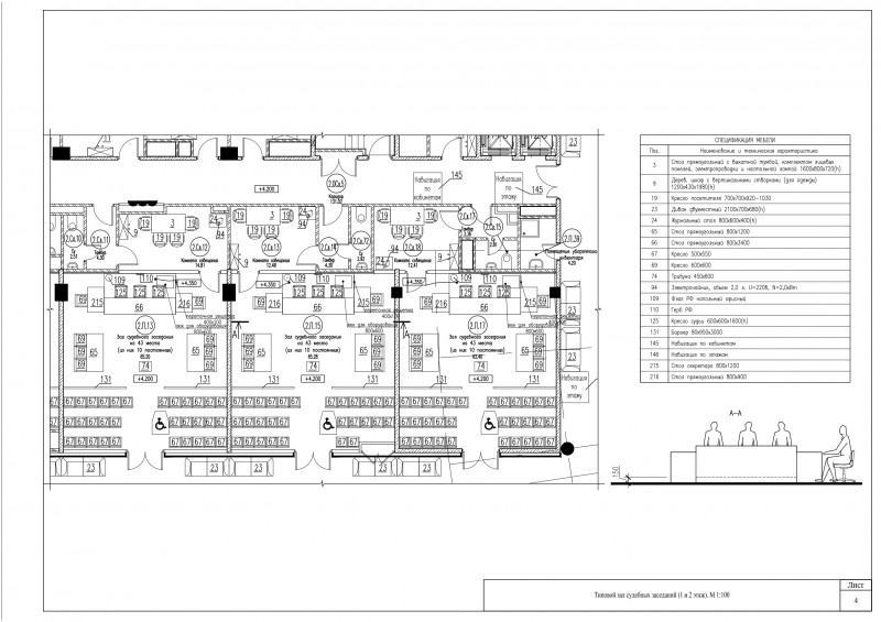
Проект Верховного Суда РФ в Санкт-Петербурге
Для полной функциональности этого сайта необходимо включить JavaScript.
Санкт-Петербург
На сайте с: 19.06.2020
Евдокия Мартынюк
evdokia1992
Рейтинг: 63
не верифицирован
Всего отзывов:
0
Работ в портфолио:
13
Типовых услуг:
0
Работ на продажу:
0
Была на сайте:
2020-07-03 в 17:04
inbox
Предложить работу
Добавить в избранное
Добавить рекомендацию
Пожаловаться
Дизайн пространства
8
0
Проект Верховного Суда РФ в Санкт-Петербурге
Используемые навыки:
Архитектура зданий и сооружений
Описание
Решение
Результат
Соавторы
Презентация проекта
Примеры реализации
Описание
Презентация проекта
Оценили проект:
0
×
Оценили проект
×
Авторизация
Для того чтобы оценивать проекты, вам нужно войти на сайт
Другие проекты
Все проекты
Разработка интерьера ЖК Мосфильмовский (Москва)
Проект Верховного Суда РФ в Санкт-Петербурге
Жилой квартал на Васильевском острове в Санкт-Петербурге
FREELANCE.RU
Toggle navigation
Нанять фрилансера
Заказчику
Найти по специализации
Найти по услугам
Провести конкурс
Разместить задание
Виртуальный HR
Другое
Найти работу
Фрилансеру
Найти задание
Присоединиться к команде
Участвовать в конкурсе
Другое
Возможности
Для заказчика
Для фрилансера
Вход
Разместить задание
▲