Узел лифта.
Для полной функциональности этого сайта необходимо включить JavaScript.
Самара
Miroslav Maksov
Miroslav27
Рейтинг: 107
не верифицирован
Всего отзывов:
0
Нейросаммари
Работ в портфолио:
6
Типовых услуг:
5
Работ на продажу:
5
Зарегистрирован:
19.03.2015
Был на сайте:
2026-03-15 в 01:27
inbox
Предложить работу
Добавить в избранное
Добавить рекомендацию
Пожаловаться
Инженерия
40
0
Узел лифта.
Используемые навыки:
Машиностроение
Описание
Решение
Результат
Соавторы
Презентация проекта
Примеры реализации
Описание
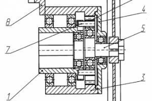
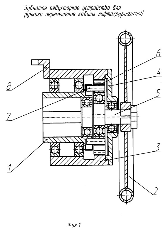
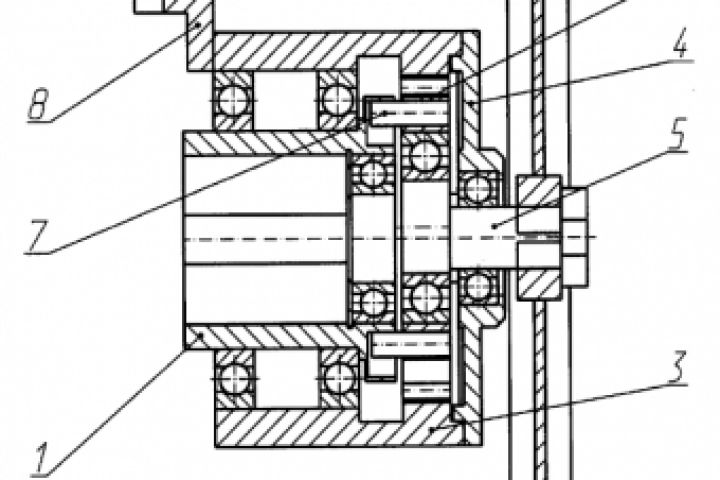
Сборочный чертеж узла лифта.
Презентация проекта
Оценили проект:
0
×
Оценили проект
×
Авторизация
Для того чтобы оценивать проекты, вам нужно войти на сайт
Другие проекты
Все проекты
Профиль
Работа 4128992
Работа 4129243
FREELANCE.RU
Toggle navigation
Нанять фрилансера
Заказчику
Найти по специализации
Найти по услугам
Провести конкурс
Разместить задание
Виртуальный HR
Найти студию
Другое
Найти работу
Фрилансеру
Найти задание
Присоединиться к команде
Участвовать в конкурсе
Предложить услугу
Другое
Возможности
Для заказчика
Для фрилансера
Вход
Разместить задание
▲