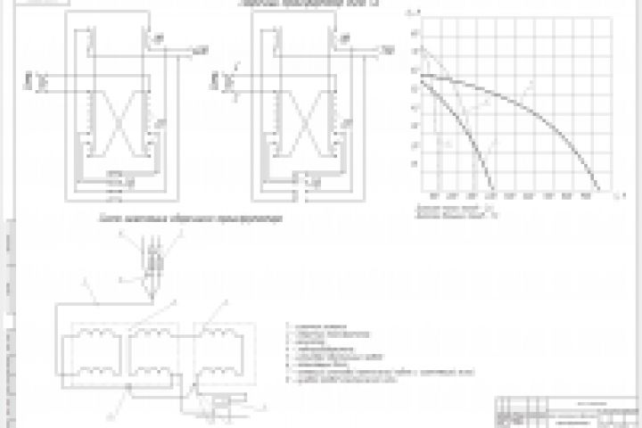
Схема сварочного аппарата. КОМПАС
Для полной функциональности этого сайта необходимо включить JavaScript.
35 лет
На сайте с: 01.06.2013
Евгений Курылёв
keyrus
Рейтинг: 140
не верифицирован
Всего отзывов:
7
0
Выполнил заданий:
6
Активность:
Работ в портфолио:
10
Типовых услуг:
0
Работ на продажу:
0
Был на сайте:
2020-07-11 в 13:42
inbox
keyrus_real@mail.ru
Предложить работу
Добавить в избранное
Добавить рекомендацию
Пожаловаться
Инженерия
33
0
Схема сварочного аппарата. КОМПАС
Используемые навыки:
Чертежи/Схемы
Описание
Решение
Результат
Соавторы
Презентация проекта
Примеры реализации
Описание
Презентация проекта
Оценили проект:
0
×
Оценили проект
×
Авторизация
Для того чтобы оценивать проекты, вам нужно войти на сайт
Другие проекты
Все проекты
ЖБИ.AutoCad
Релкламный стенд SolidWorks
Схема организации рабочего места сварщика. КОМПАС
FREELANCE.RU
Toggle navigation
Нанять фрилансера
Заказчику
Найти по специализации
Найти по услугам
Провести конкурс
Разместить задание
Виртуальный HR
Другое
Найти работу
Фрилансеру
Найти задание
Присоединиться к команде
Участвовать в конкурсе
Предложить услугу
Другое
Возможности
Для заказчика
Для фрилансера
Вход
Разместить задание
▲