Жизнь прекрасна, как не крути!!!

Виктор Ющенко viik1201

Рейтинг: 149
не верифицирован
Всего отзывов: 0
  • Работ в портфолио: 0
  • Типовых услуг: 3
  • Работ на продажу: 0
  • Образование: Магистратура
  • Тип занятости: Подработка
Был на сайте:

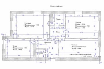
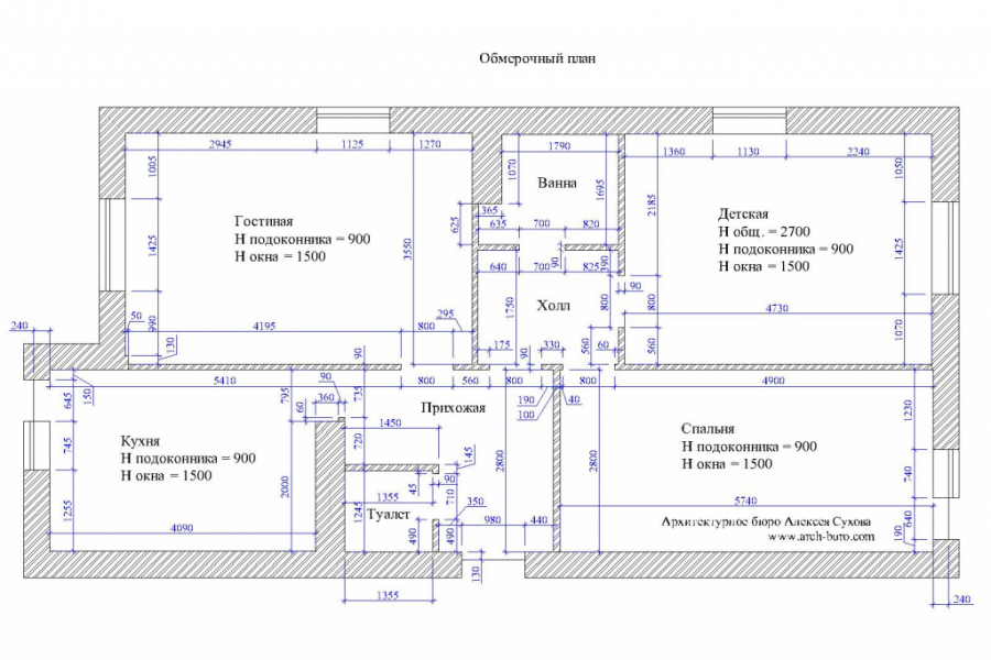
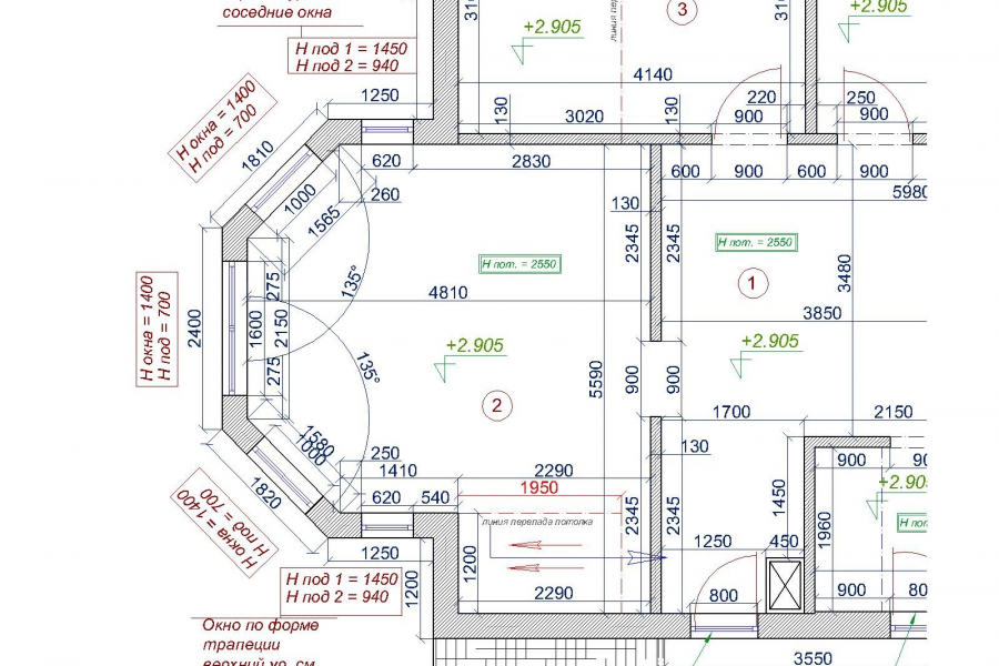
Замеры (обмеры) помещений

5 000 руб
сделаю за 1 день

20

Выполняю услугу замeры (обмeры) помещений (квартиры, дома, кoммеpчeскиe помещения) для дизайн-пpoeктиpoвания в Caнкт-Петербурге и Лен. области.
Все чертежи будут выполнены в программе: АutоСАD, со всей необходимой информацией, привязками, коммуникациями.
Что вы получите по итогу моей работы:
- обмерный план в оцифрованной формате DWG и РDF со всеми необходимыми размерами, коммуникациями;
- фотографий всех помещений не только внутреннего пространства но и внешней (общий коридор/ придомовая территория);
- видеофиксация с комментариями важных и проблемных мест объекта
- Полностью удаленная работа, без вашего присутствия
Стоимость рассчитывается следующим образом:
фиксированная стоимость 5000 руб. + услуга
Помещения с криволинейными, сложными или многоуровневые потолками - дополнительная услуга.
Стоимость выезда за пределами КАД - оговариваются отдельно, в зависимости от дальности.
Срок выполнение работ от 1 дня.

Замеры (обмеры) помещений
Замеры (обмеры) помещений
Замеры (обмеры) помещений
Заказать услугу

Вернуться в каталог