Объявления об услугах пользователя Илья Межевич
Для полной функциональности этого сайта необходимо включить JavaScript.
Все услуги
Freelance.Ru
Фрилансеры
Каталог услуг фрилансеров
Илья Межевич
Санкт-Петербург
Илья Межевич
kattishsh
Рейтинг: 40
не верифицирован
Всего отзывов:
0
Работ в портфолио:
0
Типовых услуг:
2
Работ на продажу:
0
Зарегистрирован:
14.05.2025
Был на сайте:
2025-11-07 в 14:53
+79787380129
Написать Илья Межевич
Предложить работу
Добавить в избранное
Добавить рекомендацию
telegram
Пожаловаться
Объявления об услугах пользователя Илья Межевич
3D визуализация
Назад
Вперед
Илья Межевич
1 500
/ 1 день
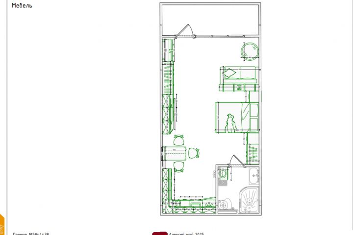
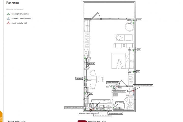
Чертежи интерьера и рабочая документация, дизайн-проект помещения
Назад
Вперед
Илья Межевич
500
/ 1 день
Посмотреть все объявления об услугах
FREELANCE.RU
Toggle navigation
Нанять фрилансера
Заказчику
Каталог фрилансеров
Каталог PRO
Каталог студий
Каталог услуг
Каталог работ
Виртуальный HR
Умный поиск
Провести конкурс
Разместить задание
Найти работу
Найти задание
Присоединиться к команде
Участвовать в конкурсе
Предложить услугу
Вход
Разместить задание
▲