Будущее зависит от того, что ты делаешь сегодня

Projectppr projectppr

Рейтинг: 59
не верифицирован
Всего отзывов: 0
  • Работ в портфолио: 19
  • Типовых услуг: 3
  • Работ на продажу: 0
Был на сайте:

Разработка проектов производства работ (ППР)

15 000 руб
сделаю за 3 дня

71

Опыт разработки проектов производства работ более 15 лет. Разработано более 500 проектов производства работ.
Разработаем качественно и в срок проекты производства работ (ППР), проекты производства демонтажных работ (ППДР), планы производства работ на высоте (ППРв), технологические карты (ТК), графики производства работ и движения технико-людских ресурсов.
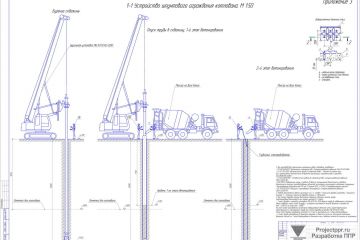
Большое внимание уделяется графической части ППР, которая представляет собой схемы производства работ с указанием процесса выполнения различных строительно-монтажных работ, с обязательной привязкой к объекту строительства. Строительный генеральный план оформляем в соответствии с СП 48.13330.2019 с указанием ограждения строительной площадки, схемы размещения строительного городка, схемы организации дорожного движения, схемы размещения складских площадей и помещений, схемы привязки основных средств механизации и указанием опасных производственных зон и зон влияния строительных машин.
Вся документация оформляется в соответствии с действующей нормативно-технической документацией.
Сроки выполнения работ по разработке ППР составляют от 3 рабочих дней, в зависимости от наличия полного пакета исходной документации и сложности проводимых работ.
В каждом отдельном случае сроки оговариваются, составляется техническое задание и договор, которые согласовываются с Заказчиком.
Выполняем сопровождение проекта производства работ до полного согласования.

Разработка проектов производства работ (ППР)
Разработка проектов производства работ (ППР)
Разработка проектов производства работ (ППР)
Заказать услугу

Вернуться в каталог