Рейтинг: 43
не верифицирован
Всего отзывов: 0
  • Работ в портфолио: 3
  • Типовых услуг: 1
  • Работ на продажу: 0
  • Зарегистрирован: 22.08.2024
Был на сайте:

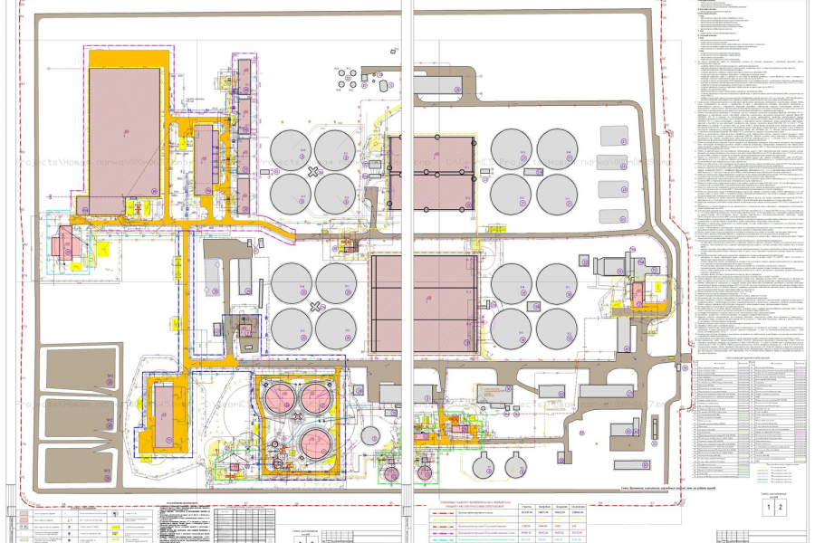
Разработка ПОС, ППР, ТК

10 000 руб
сделаю за 2 дня

74

Разработаю проектную документацию раздела ПОС Постановления 87 на площадные и линейные объекты, а также ППР и ППРк.

Имею большой опыт, участвовал в реализации более 100 проектов.

Нужно для заказа:
Для ПОС:

1. Раздел СПОЗУ на геоподоснове

2. Разделы ОПЗ, АР, КР

3. Смета (при наличии)

4. Предпочтения по технике и оборудованию (при наличии)

5. ТУ или параметры подключения к инженерным сетям (при наличии)

6. ТЗ или пожелания Заказчика (при наличии)

Для ППР/ППРк:

1. Раздел ПОС

2. Соответствующие разделы ПД и РД в зависимости от специфики

3. Предпочтения по технике и оборудованию (при наличии)

4. ТЗ или пожелания Заказчика (при наличии)

Разработка ПОС, ППР, ТК
Разработка ПОС, ППР, ТК
Разработка ПОС, ППР, ТК
Заказать услугу

Вернуться в каталог