Гармония и комфорт - моя задача, ваши мечты - в реальность!

Ольга Птицына olga68111

Top 10
Рейтинг: 6 953
Верифицирован через Сбер ID
Всего отзывов: 1 0
Профессионализм: 10 Коммуникация: 10
Выполнила заданий: 1
  • Работ в портфолио: 6
  • Типовых услуг: 5
  • Работ на продажу: 0
  • Образование: Cпециалитет
  • Стаж работы: 3 года
  • Тип занятости: Полный фриланс
  • Юридический статус:Самозанятый
Была на сайте:

Разработка модулейкухни с чертежами

10 000 руб
сделаю за 2 дня

57

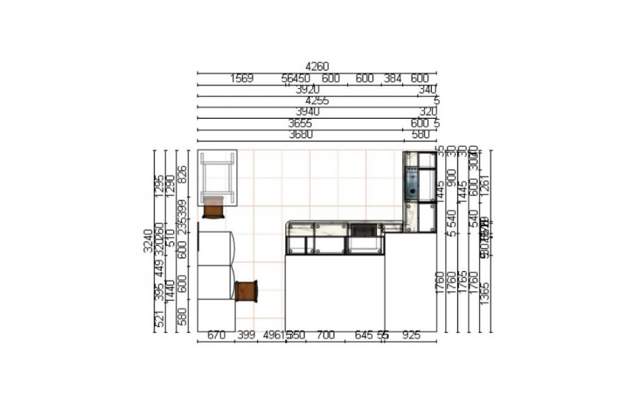
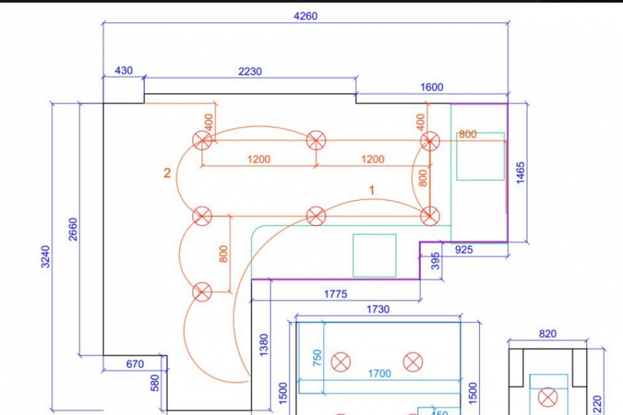
По вашему плану с размерами и вашим предпочтениям по цвету и материалу фасадов, а также столешницы и фартука , выбора техники, создам:
1. Планировку кухни ч учётом эргономики
2. План электрики
3. Водоотведение труб
4. Схему-чертёж фасадов и техники с размерами
5. Визуализацию в 3D

Разработка  модулейкухни с чертежами
Разработка  модулейкухни с чертежами
Разработка  модулейкухни с чертежами
Заказать услугу

Вернуться в каталог