Рейтинг: 53
не верифицирован
Всего отзывов: 0
  • Работ в портфолио: 3
  • Типовых услуг: 3
  • Работ на продажу: 0
Была на сайте:

Проектная документация

1 000 руб
сделаю за 15 дней

28

Выполню проектную документацию в AutoCad по образцу, либо по своим отработанным шаблонам (больше примеров предоставлю по запросу)
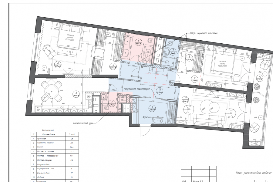
- Все необходимые планы (электрика, потолки, полы, освещение, ведомость дверей, расстановка мебели)
- Развертки помещений с указанием отделочных материалов, выводов и пр.
- Спецификации мебели, освещения, отделочных материалов
- Необходимые узлы и детализация
Стоимость указана за квадратный метр
Ваше ТЗ - план в AutoCad или любой другой, 3Д визуализация, список необходимых чертежей

Проектная документация
Проектная документация
Проектная документация
Заказать услугу

Вернуться в каталог