Боишься - не делай, делаешь - не бойся

Екатерина Клапчук karimova9

Рейтинг: 61
не верифицирован
Всего отзывов: 0
  • Работ в портфолио: 1
  • Типовых услуг: 1
  • Работ на продажу: 0
  • Образование: Cпециалитет
  • Стаж работы: 4 года
  • Тип занятости: Подработка
  • Юридический статус:Частное лицо
Была на сайте:

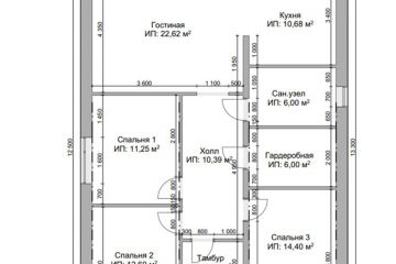
Проектирование жилых и нежилых зданий и сооружений

10 000 руб
сделаю за 3 дня

40

Работаю в строительной сфере с 2021 года.

Занимаюсь эскизным проектированием жилых индивидуальных домов и иных строений (бани/гаражи/беседки)

3д визуализация экстерьера дома

Делаю проекты для одобрения ипотеки в банке и на портале строим.дом.рф

Подскажу и помогу строительной компании получить аккредитацию в банках

Мой проект подходит для:
- Уведомления о начале строительства.
- Постановки дома на кадастровый учет.
- Семейной и сельской ипотеки.
- Строительства домов из различных материалов.

Материалы для проектирования
- Газобетон, пеноблоки, арболит.
- Керамический кирпич, поризованная керамика.
- Каркасные и деревянные дома.

Срок исполнения работ от 3 до 5 дней
Возможна подготовка срочного проекта за 1 день за дополнительную плату

Проектирование жилых и нежилых зданий и сооружений
Проектирование жилых и нежилых зданий и сооружений
Проектирование жилых и нежилых зданий и сооружений
Заказать услугу

Вернуться в каталог