Рейтинг: 60
не верифицирован
Всего отзывов: 0
  • Работ в портфолио: 0
  • Типовых услуг: 3
  • Работ на продажу: 0
  • Возраст: 37 лет
  • Стаж работы: 13 лет
  • Зарегистрирован: 03.03.2026
  • Образование: Cпециалитет
  • Юридический статус:Самозанятый
Был на сайте:

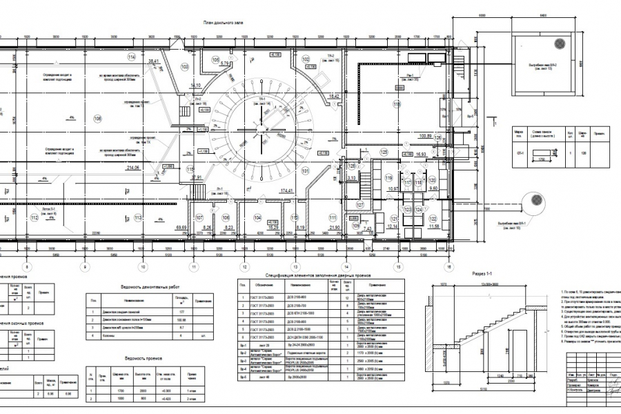
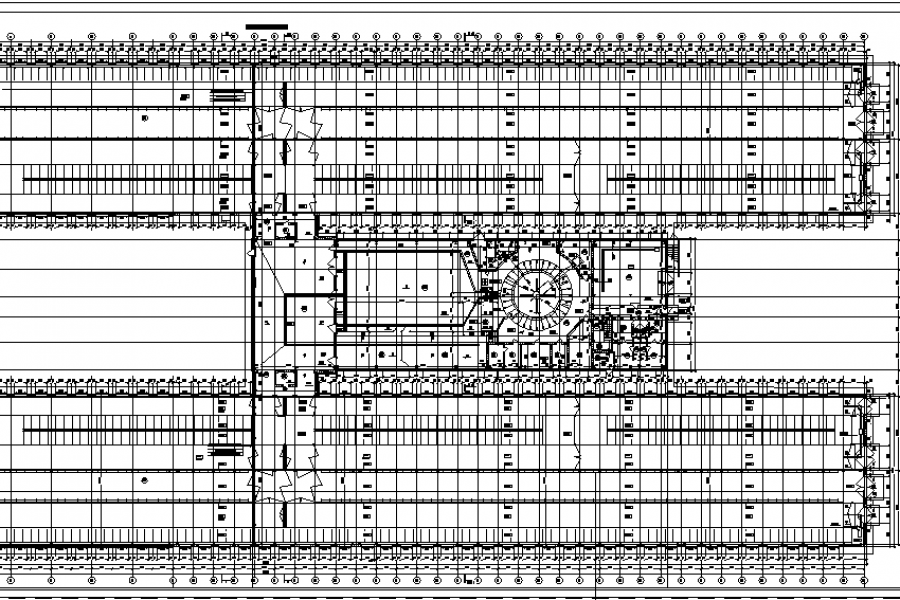
Проектирование сельскохозяйственных зданий АР, КР, КМ, КМД, КЖ, АС

40 000 руб
сделаю за 21 день

62

Проектирование разделов АР, КР, КМ, КМД, КЖ, АС по 87 постановлению. Есть опыт государственных и коммерческих экспертиз. Опыт в проектировании животноводческих комплексов КРС молочного типа более 11 лет (Все виды содержания привязные и беспривязные). Имел опыт в проектировании следующих объектов: коровники, телятники, откормочники, родильные отделения, сенажные траншеи, склады, Дез барьеры, лагуны, жижесборники, ветпункты, телятники-профилактории станции водоподготовки, емкости для хранения навоза, система навозоудаления Флеш флюм, навозные упоры, Есть чертежи всех доильных установок Карусель, Елочка, Европараллель. Есть чертежи всех систем навозоудаления ТСН, НЖН, дельтаскрейперы, Флеш флюм. По моим чертежам строят сельскохозяйственные здания.
Есть примеры работы, могу выслать на почту по требованию.

Проектирование сельскохозяйственных зданий АР,  КР,  КМ, КМД, КЖ, АС
Проектирование сельскохозяйственных зданий АР,  КР,  КМ, КМД, КЖ, АС
Проектирование сельскохозяйственных зданий АР,  КР,  КМ, КМД, КЖ, АС
Заказать услугу

Вернуться в каталог