Рейтинг: 40
не верифицирован
Всего отзывов: 0
  • Работ в портфолио: 0
  • Типовых услуг: 1
  • Работ на продажу: 0
  • Зарегистрирован: 22.02.2022
Был на сайте:

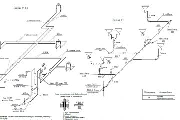
проектирование р. ВК, НВК

1 000 руб
сделаю за 10 дней

99

Выполняю р. Внутренние и наружные сети водоснабжения и канализации. Быстро и в срок, всегда на связи

проектирование р. ВК, НВК
Заказать услугу

Вернуться в каталог