Опытный специалист

Дмитрий Овсепян Ovsepyan94

Рейтинг: 136
не верифицирован
Всего отзывов: 1 0
Выполнил заданий: 1
  • Активность:
  • Работ в портфолио: 31
  • Типовых услуг: 1
  • Работ на продажу: 0
  • Возраст: 31 год
  • Стаж работы: 10 лет
  • Зарегистрирован: 20.03.2015
  • Образование: Бакалавриат
  • Юридический статус:ИП
  • Стоимость услуг (руб): 500 за час 100 000 за месяц
Был на сайте:

Проект дома/коттеджа

20 000 руб
сделаю за 15 дней

50

Общие данные
Ведомость чертежей основного комплекта
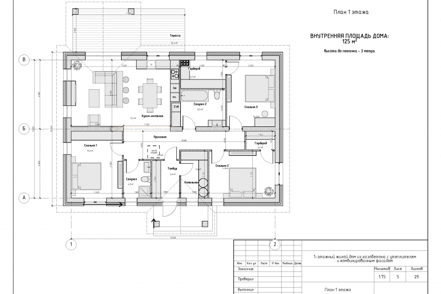
Планы 1-го этажа
План свайного поля
План ростверка
План пола 1 этажа
Специальные узлы
Кладочный план 1-го этажа
План с экспликацией проёмов 1 этажа
План перекрытий 1 этажа
План стропил
План кровли
Фасады
Разрез 1 - 1
Конструктивные узлы
Генплан
Конструктивные узлы
Ведомость окон ПВХ
Принципиальная схема водоснабжения
План водоснабжения и канализации
Принципиальная схема отопления
План теплого пола 1 этажа
План радиаторов 1 этажа
Схема вентиляции 1 этажа
Ведомость дверей
Визуализация

Проект дома/коттеджа
Проект дома/коттеджа
Проект дома/коттеджа
Заказать услугу

Вернуться в каталог