Рейтинг: 109
Паспорт верифицирован
Всего отзывов: 0
  • Работ в портфолио: 49
  • Типовых услуг: 3
  • Работ на продажу: 0
  • Зарегистрирован: 13.02.2024
Был на сайте:

Полный дизайн проект

2 000 руб
сделаю за 15 дней

80

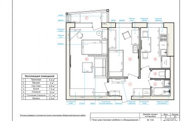
Полный дизайн проект интерьера квартиры или дома включает в себя комплект рабочих чертежей для строителей: обмерный план, планировочное решение с расстановкой мебели, сантехники и оборудования, планы монтажа стен, полов и потолков, развертки и разрезы, схемы электрики, сантехники, отопления и вентиляции, схемы раскладки настенных и напольных покрытий, ведомости и спецификации, расчет количества строительных и отделочных материалов, а также фотореалистичную 3Д-визуализацию.

Полный дизайн проект
Полный дизайн проект
Полный дизайн проект
Заказать услугу

Вернуться в каталог