Страсть к творчеству

Елена Дорохова leneti

Рейтинг: 77
не верифицирован
Всего отзывов: 0
  • Работ в портфолио: 7
  • Типовых услуг: 1
  • Работ на продажу: 0
  • Возраст: 36 лет
  • Зарегистрирован: 26.09.2024
Была на сайте:

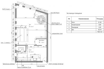
Планировочное решение

150 руб
сделаю за 6 дней

44

Здравствуйте!
Меня зовут Елена.

Помогу создать вашу идеальную планировку, квартиры, дома и любого другого жилого и нежилого помещения.

Я дипломированный специалист, с большим опытом работы в сфере проектирования и дизайна.

150 р. м.кв помещения.

Что входит:

- Консультация
- Составления ТЗ (технического задания).
- Разработка 2-3 варианта планировочного решения

Отдаю в электронном виде PDF формат.

Планировочное решение
Планировочное решение
Планировочное решение
Заказать услугу

Вернуться в каталог